VISIT參觀
設施指南
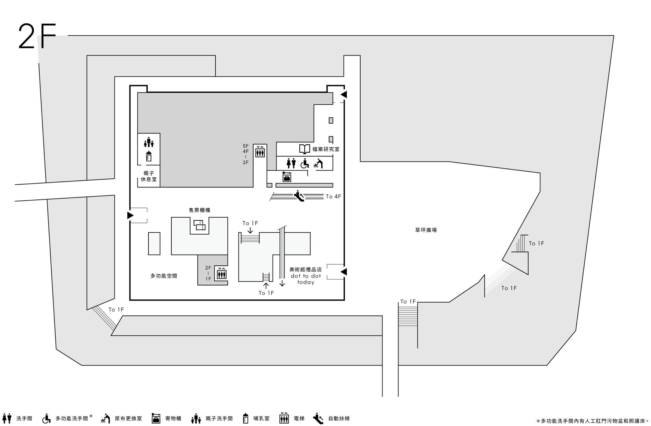
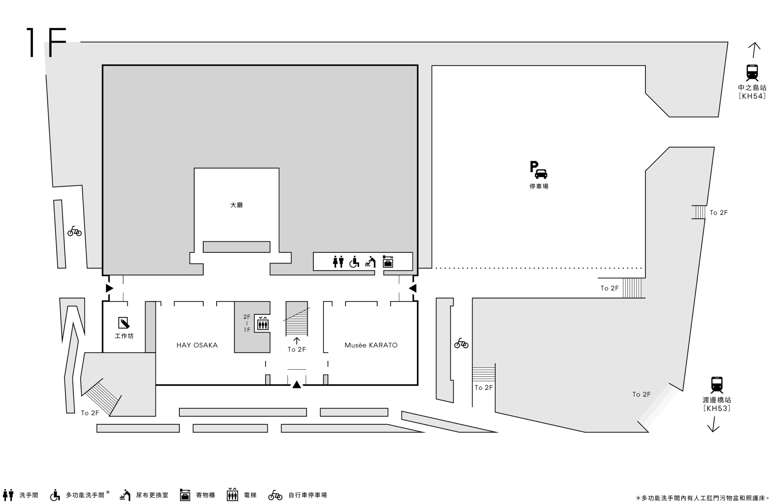
樓層分布樓層分布圖請點選於此[PDF]
| 5F | 展覽室 |
|---|---|
| 4F | 展覽室 |
・・・・
| 2F | 售票台、親子休息室、 檔案資料室、草坪廣場(室外) |
|---|---|
| 1F | 商店、餐廳、大廳、研討室、會議室 |

| 5F | 展覽室 |
|---|---|
| 4F | 展覽室 |
| ・・・・ | |
| 2F | 售票台、親子休息室、檔案資料室、草坪廣場(室外) |
| 1F | 商店、餐廳、大廳、研討室、會議室 |
4樓展覽室/5樓展覽室
大阪中之島美術館收藏的超過6000件藏品、從國內外借展的作品在4樓和5樓展廳展示。4樓總面積約1400㎡,1號展廳有一個可展示日本畫的約60m的展櫃。5層展廳面積約1700㎡,天花板高度達6m,該設計也適合舉辦大型巡迴展覽。另外還可以分割使用,滿足各種規模展覽會的需要。南北向的走廊兩端設有大玻璃窗,從這裡可眺望代表水城大阪的中之島的絕妙景色。

2F
2層樓處,周圍設有人工地面,通往步行連廊與周邊場地銜接,提高了市區的環遊性。來館參觀者最先到訪的走廊空間,在多個方向設有出入口,旨在讓每個人都可隨意進出。此外,透過挑高天井形成立體連接,各層空間呈現連續性。尤其是在挑高天井內大膽設置自動扶梯,更能激蕩參觀者的情緒。

1F
咖啡廳、餐廳和工藝美術品商店等服務設施設置了充足的空間,在提高對參觀者的服務的同時,方便周邊過往行人隨意進入,還可為增強地區活力作為貢獻。此外,位於建築物中心位置的大廳、位於南入口附近的研討室,可隨意改變室內配置,除了講座、研討會之外,還可以舉辦音樂會、戲劇、招待會等豐富多彩的活動。






