VISIT訪ねる
施設案内
フロア構成 フロアマップはこちら[PDF]
| 5F | 展示室 |
|---|---|
| 4F | 展示室 |
・・・・
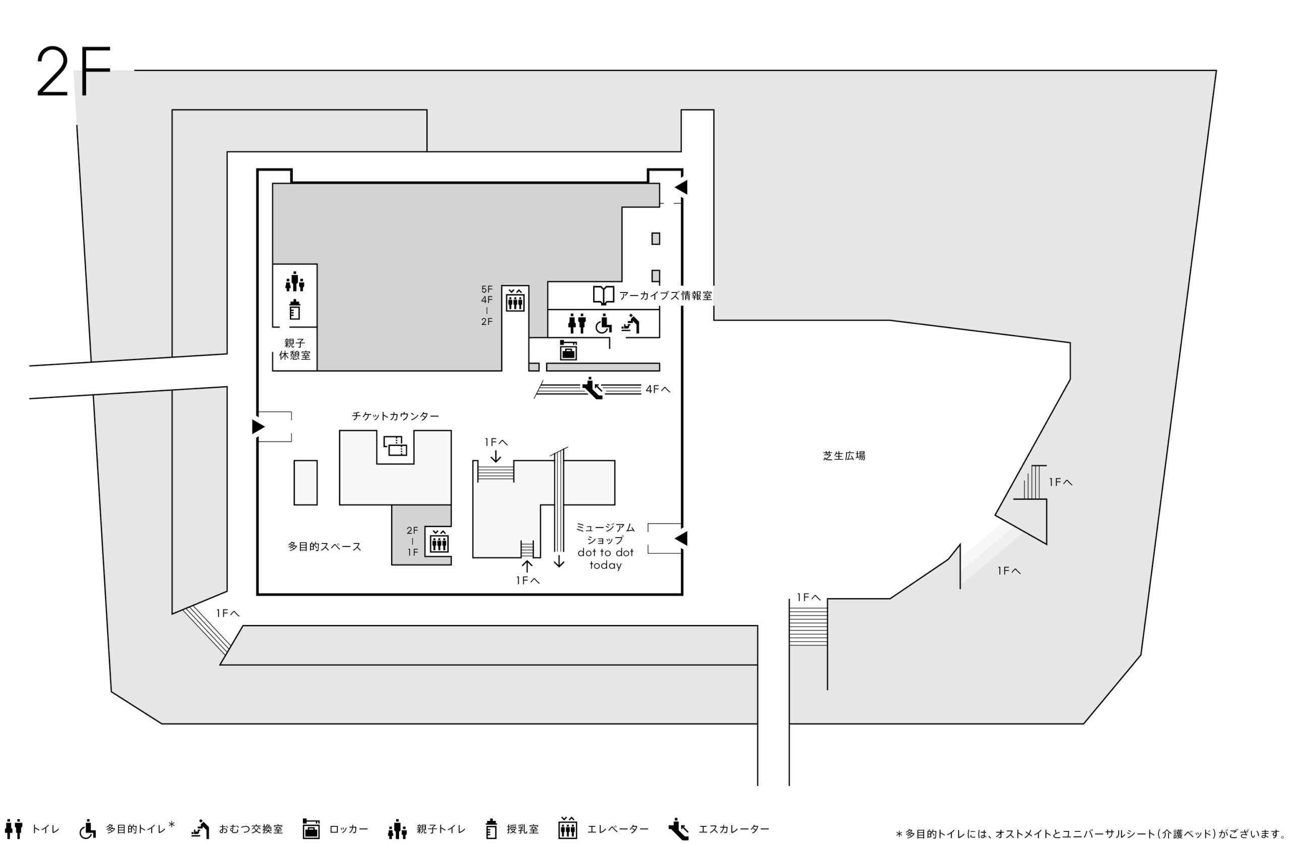
| 2F | チケットカウンター・親子休憩室・ アーカイブズ情報室・芝生広場(屋外)・ミュージアムショップ |
|---|---|
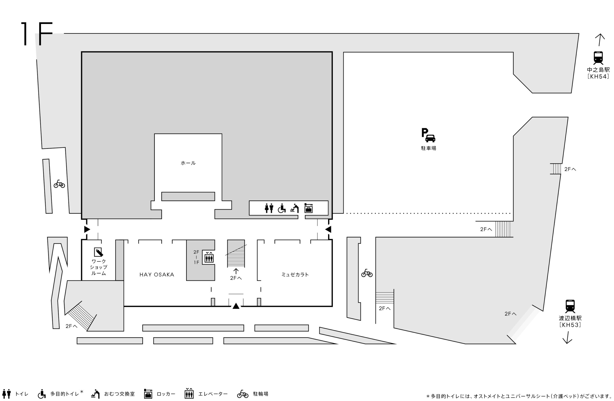
| 1F | ショップ・レストラン・ホール・ ワークショップルーム |

| 5F | 展示室 |
|---|---|
| 4F | 展示室 |
| ・・・・ | |
| 2F | チケットカウンター・親子休憩室・アーカイブズ情報室・芝生広場(屋外)・ミュージアムショップ |
| 1F | ショップ・レストラン・ホール・ワークショップルーム |
4F展示室/5F展示室
大阪中之島美術館が所蔵する6000点超のコレクションや国内外からの借用作品を展示する展示室は4階と5階にあります。4階は合わせて約1400㎡の面積があり、展示室の一部には日本画の展示ができるように約60mの展示ケースを設置しています。5階展示室は、約1700㎡の面積と6mの天井高を確保しており、大規模巡回展の開催にも適した設計となっています。分割して使用することも可能で、さまざまな規模の展覧会が開催できます。南北に貫かれたパッサージュには両端に大きなガラス窓が配置され、水都大阪を代表する中之島の素晴らしい眺望を楽しめます。
*パッサージュとは、フランス語で歩行者専用のアーケードで囲われた通路や自由に歩ける小径のこと。

2F
2階レベルで建物周囲に巡らされた人工の地盤は、歩行者デッキを介して周辺の敷地ともつながり、まちの回遊性向上に寄与します。また、来館者が最初に訪れるパッサージュ空間は、多方向に出入口を設け、誰もが気軽にアクセスできるよう工夫されているとともに、吹き抜けを介して立体的につながり、各階の空間的な連続性にも配慮されています。特に、吹き抜け内に大胆に設置されたエスカレーターは、来館者の気持ちを盛り上げてくれることでしょう。
親子休憩室
子ども向けのプレイルームに子ども用のトイレ、授乳室、おむつ替えコーナーを完備しています。
*授乳室の利用をご希望の方は2階チケットカウンターにてお申し出ください。授乳室の鍵をお渡しいたします。
アーカイブズ情報室
アーカイブズ情報室は、美術館の保有する情報資源を調査・研究利用するための施設です。当館では、美術館の情報資源として主に次のものを管理し、長期保存しています。
詳細はこちら

1F
カフェやレストランなどのサービス施設は、充実したスペースを確保し来館者サービスの向上を図るとともに、周辺を行き交う人々が気軽にアクセスできるよう配置することで、エリアの賑わい創出にも貢献します。また、建物の中心に位置するホールや南側入口付近に配置されたワークショップルームはさまざまなレイアウトが可能で、講演会やワークショップに加えて、コンサートや演劇、レセプションなど多彩なプログラムが開催できます。

バリアフリー情報
車いす、ベビーカーでのご入館について
1階東側入口(ミュゼカラト・HAY OSAKAの間)から入館いただくと便利です。 1階大階段南側にエレベーターがございます。
車いす、ベビーカーのお貸出について
車いす、ベビーカーを2階チケットカウンターでお貸出しております。ご希望の方は2階チケットカウンターにてお申し出ください。
*台数に限りがございます。
*ご利用は美術館の建物内に限ります。
多目的トイレ
車いすでのご利用やオストメイトにも対応したユニバーサルトイレを各階に設けています。





